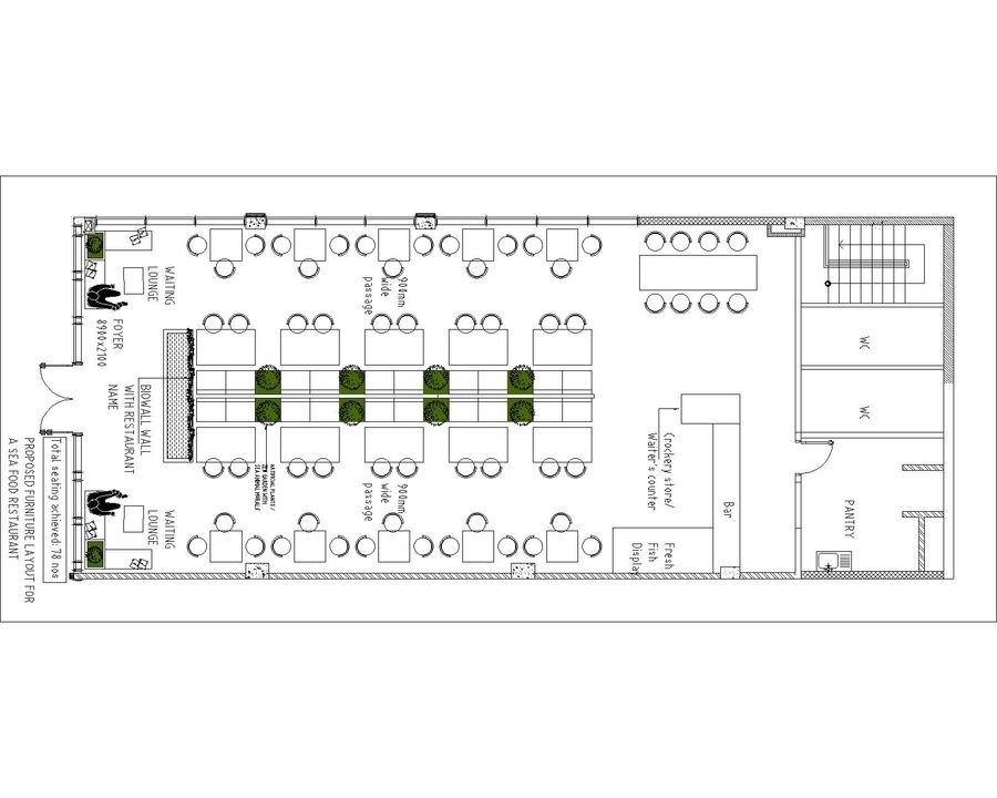
I herewith have attached my entry for the sea food restaurant.In addition with the dining layout asked for have created some interest in the design. The number of the seating can be worked upon or even the design can be revised further on as per your requirements on getting me committed for the project.Thanks

